ПРОДАЖА 2-КОМН.КВ. НА ПРОСПЕКТЕ ШЕВЧЕНКО (№ 212-826-596)

Ціна: 100 000 $
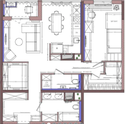
Характеристики
Ціна: | 100 000 $ |
---|---|
№ об'єкта: | 212-826-596 |
Кімнат: | 2 розд |
Поверх: | 3 / 30 ліфт |
Площа: | 79 / - / 15 м2 |
Санвузол: | 1 |
Додатково: | новобудова |
Адреса: Одеська, Одеса, Приморський, Шевченка проспект, 29/1
В продаже просторная квартира у парка Победы, новый дом бизнес класса. Расположена на 3/30 этаже, общей площадью 79 кв.м. Окна выходят в сторону моря, на Бот.сад, не на Дворец Спорта. Полноценная двухкомнатная квартира. В шаговой доступности парк Победы, Французский бульвар, Ботанический сад.