ÏÐÎÄÀÆÀ 2-ÊÎÌÍ.ÊÂ. ÆÊ 'ÌÀÐØÀËË ÑÈÒÈ' (¹ 212-826-603)

Ö³íà: 68 000 $
Õàðàêòåðèñòèêè
Ö³íà: | 68 000 $ |
---|---|
¹ îá'ºêòà: | 212-826-603 |
ʳìíàò: | 2 |
Ïîâåðõ: | 15 / 17 ë³ôò |
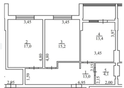
Ïëîùà: | 68 / 32 / 13 ì2 |
Ñàíâóçîë: | 1 |
Äîäàòêîâî: | íîâîáóäîâà |
Àäðåñà: Îäåñüêà, Îäåñà, Êè¿âñüêèé, ïð-ò Ïîëêîâíèêà Ãóëÿåâà (ïð-ò Ìàðøàëà Æóêîâà îáë), 111/3
 ïðîäàæå õîðîøàÿ äâóõêîìíàòíàÿ êâàðòèðà â ÆÊ ìàðøàë Ñèòè, ðàéîí Òàèðîâà. Êâàðòèðà íà 15/17 ýòàæå, îáùåé ïëîùàäüþ 68 êâ.ì. Ïëàíèðîâêà ðàçäåëüíàÿ, êâàðòèðà ñ ãîòîâûì âûïîëíåííûì ðåìîíòîì,. Ïàíîðàìíûì îñòåêëåíèÿì è áîëüøîé ëîäæèåé. Ñàíóçåë óêîìïëåêòîâàí.  øàãîâîé äîñòóïíîñòè îò êîìïëåêñà ðûíîê, ñóïåðìàðêåòû, òîðãîâûé öåíòð. Çâîíèòå, è ïðèõîäèòå íà ïðîñìîòð.