Трехкомнатная квартира в историческом центре на Нежинской (№ 212-928-181)

Ціна: 55 000 $
Характеристики
Ціна: | 55 000 $ |
---|---|
№ об'єкта: | 212-928-181 |
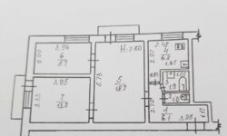
Кімнат: | 3 см/рз |
Поверх: | 5 / 5 |
Площа: | 58 / 40 / 7 м2 |
Санвузол: | 1 роздільний |
Балкон: | балкон+лоджія |
Адреса: Одеська, Одеса, Приморський, Нежинская улица
В продаже трехкомнатная квартира возле Соборной площади общей площадью 58 метров. 5 этаж, комнаты смежно-раздельные, две отдельные спальни, два балкона, санузел раздельный. Выполнен косметический ремонт, остается мебель и техника. Двор и парадная на кодовых замках, отреставрированная крыша, из окон красивый вид на историческую часть города и на Преображенский Собор. Приглашаем на просмотр, звоните!