2-х ком квартира с ремонтом и мебелью в жемчужном квартале на таирова (№ 213-015-246)

Ціна: 56 200 $
Характеристики
Ціна: | 56 200 $ |
---|---|
№ об'єкта: | 213-015-246 |
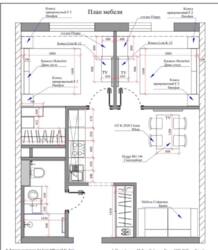
Кімнат: | 2 розд |
Поверх: | 15 / 18 ліфт |
Площа: | 45 / 28 / 14 м2 |
Санвузол: | 1 сумісний |
Балкон: | балкон |
Адреса: Одеська, Одеса, Київський, Таирова, Жемчужная улица, 12
просторная евро двушка в ЖК Жемчужина на Таирова . Кухня-гостиная и 2 отдельные спальни. Выполнен капитальный современный ремонт в пастельных тонах. Укомплектована частично необходимой мебелью и техникой. супер вид из окна. Комплекс с полностью благоустроенной инфраструктурой и очень красивой придомовой территорией. просмотр в удобное время. Данную квартиру есть возможность приобрести в рассрочку с первым взносом -30% - остаток разбивается на 12 или 18 месяцев- ключи вы получаете в день оплаты- 30 %